【売主】岩戸2丁目新築戸建 ★価格変更★
-
売主物件仲介手数料不要
横須賀市岩戸2丁目に、
新しい暮らしが始まる新築戸建が登場しました。角地に建つ開放感のある立地で、
車はしっかり2台駐車可能。
さらに敷地にはお庭スペースもあり、
「せっかくの戸建てだから庭も使いたい」
という方にはうれしいポイントです!
BBQをするもよし、家庭菜園を始めるもよし。
やろうと思えば、ちょっとしたアウトドア気分も味わえます。
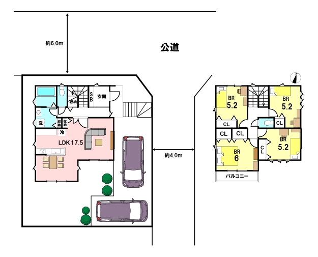
室内は4LDKの使いやすい間取り。
キッチンからリビング・ダイニングが見渡せる配置になっているので、
料理をしながら家族の様子もしっかり確認できます。
家族がそれぞれの時間を過ごしながらも、
なんとなく同じ空間にいる感じ。
こういうの、意外と大事だったりします。
水回りの動線もスムーズで、毎日の家事が少しラクになる設計。
玄関もゆったりしているので、
「靴が多い」
「家族の荷物が・・・」
なんてご家庭でも安心です。周辺は落ち着いた住宅地でありながら、
スーパーは徒歩2分、ドラッグストアも徒歩4分と生活環境はなかなか便利。
学校も徒歩圏内なので、子育て世帯にも安心の立地です。さらに、地盤保証20年や建物保証など、
見えない部分の安心もしっかり確保。
長く住む家だからこそ、こういうところは意外と大事。約48坪のゆとりある敷地に、建物面積は約100㎡。
数字だけ見るとピンとこないかもしれませんが、
実際に現地に立つと「思ったよりゆったりしてるな」と
感じていただけるサイズ感です。駐車スペースを確保しつつ、
お庭のスペースもしっかり。
室内も4LDKで、ご家族それぞれの居場所をきちんと確保できる間取りになっています。
広すぎて持て余すこともなく、
でも窮屈さも感じにくい。そんな“ちょうどいいゆとり”がある住まいです。図面だけでは、このゆとりはなかなか伝わりません!
ぜひ一度、現地で実際の広さや空気感を体感してみてください。
| 物件名 | 【売主】岩戸2丁目新築戸建 ★価格変更★ | 種別 | 新築戸建 |
|---|---|---|---|
| 住所 | 横須賀市岩戸2丁目 | ||
| 交通 | ■京急本線「北久里浜」駅バス14分「岩戸2丁目」停歩3分 | ||
| 価格 | 4,098万円 | 間取り | 4LDK |
|---|---|---|---|
| 建ぺい率/容積率 | 40・50(%)/80(%) | 完成(築年月) | 契約後6カ月 |
| 建物面積 | 98.53㎡ | 敷地面積 | 159.72㎡ |
| 用途地域 | 1種低層 | 土地権利 | 所有権 |
| 私道負担/道路 | 北側(公道)約6.0m、東側(公道)約4.0m | 現況/引渡 | 更地/相談 |
| 取引番号 | 建築確認番号 | 第25KAK建確03572号 |
| 価格 | 4,098万円 |
|---|---|
| 間取り | 4LDK |
| 建ぺい率/容積率 | 40・50(%)/80(%) |
| 完成(築年月) | 契約後6カ月 |
| 建物面積 | 98.53㎡ |
| 敷地面積 | 159.72㎡ |
| 用途地域 | 1種低層 |
| 土地権利 | 所有権 |
| 私道負担/道路 | 北側(公道)約6.0m、東側(公道)約4.0m |
| 現況/引渡 | 更地/相談 |
| 取引番号 | |
| 建築確認番号 | 第25KAK建確03572号 |










